FOTO: Začela se je gradnja nove stanovanjske soseske

| v Lokalno

V središču Moravskih Toplic so pred dnevi zabrneli stroji, saj se je začela gradnja novih stanovanjskih objektov.

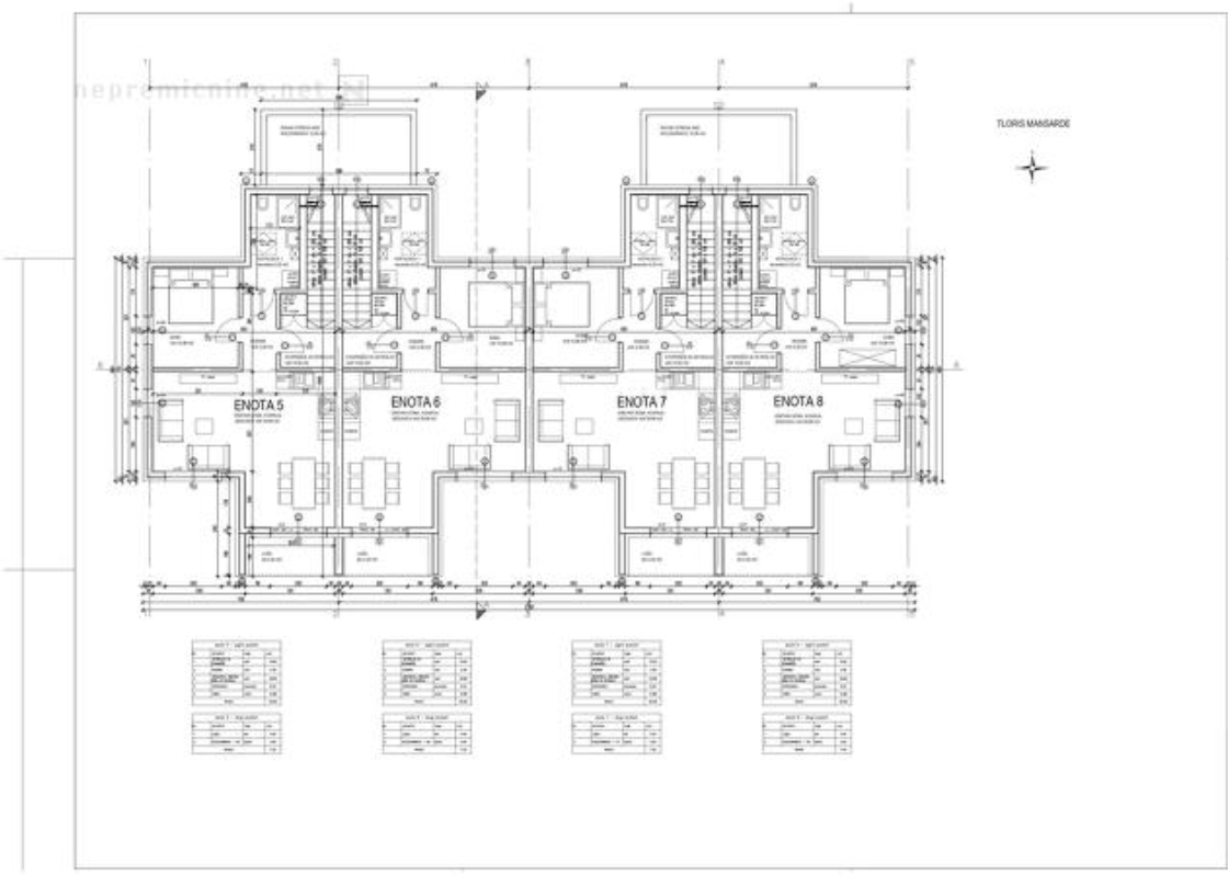
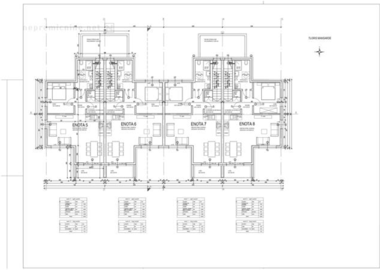
V bližini trgovine Mercator v Moravskih Toplicah so pričeli z gradnjo štirih dvostanovanjskih objektov, ki bodo predstavljali novo stanovanjsko sosesko načrtovano v skladu z visokimi bivanjskimi standardi.

8 nizkoenergetskih stanovanj za okoli 1500 evrov na kvadratni meter

Na voljo bo osem stanovanj, montažne gradnje po standardih gradnje nizkoenergetskih hiš. Gre za dvosobna stanovanja s 71,99 kvadratnih metrov ali 67,98 kvadratnih metrov površine. Pritlična stanovanja bodo imela atrije, stanovanja v etaži pa terasne površine. Za stanovanja s površino 71,99 kvadartnih metrov bo potrebno odšteti 109.500,00 evrov, za 67,98 kvadratnih metrov površine pa 101.500,00 evrov površine, kar znese 1521,04 evrov na kvadratni meter oziroma 1493,08 evrov na kvadratni meter.

Moravske Toplice za investitorja zanimiva lokacija, tri stanovanja so že prodali

Investitor je podjetje MM montažne hiše, gradbeništvo in storitve d.o.o. iz Grosuplja. Podjetje se sicer na svoji spletni strani ponaša z 20-letno tradicijo pri proizvodnji montažnih hiš, ampak je bilo dejansko ustanovljeno šele 8.10.2018. Ustanovitelja in direktorja sta Mitja Žlajpah in Matjaž Nidorfer, ki je nekdanji urednik revije Moje finance, soavtor večih knjig in pobudnik projekta finančno opismenjevanje. 

Direktor Nidorfer nam je zaupal, da so pridobili gradbena dovoljenja in začeli z gradbenimi deli.

"V sredini novembra pričakujemo, da bo temeljna plošča pripravljena in bo izvajalec del, podjetje Pergola d.o.o., pričelo s postavitvijo montažnih hiš, mi smo pa investitorji."

Nidorfer je potrdil, da bodo stanovanja namenjena bivanju, saj ne gre za apartmaje. Zanimanja naj bi bilo kar precej, saj naj bi od osmih stanovanj že tri bila prodana.

Njihovo podjetje, kot investitor, išče zanimive lokacije po Sloveniji in to je bila ena izmed njih, kot je povedal Nidorfer: "Moravske Toplice se lepo razvijajo, okolje je prijetno in kraj raste. Tudi lokacija je zanimiva, saj je v bližini term.".

 

Računajo, da bodo stanovanja vseljiva spomladi v naslednjem letu.

Preberite še

Komentarji

Sarkazem

Nekaj kar si lahko vsak privošči

df

Cilau DF.

micikaaa

SOBOTA RABI MALA STANOVANJA ZA STAREJŠE, KI SE HITRO PRODAJO A TO RAZLOŽITI ARHITEKTOM JE MISIJA NEMOGOČE..ŠOLANI PA NESPOSOBNI..........

Komentarji

Sarkazem

Nekaj kar si lahko vsak privošči

df

Cilau DF.

micikaaa

SOBOTA RABI MALA STANOVANJA ZA STAREJŠE, KI SE HITRO PRODAJO A TO RAZLOŽITI ARHITEKTOM JE MISIJA NEMOGOČE..ŠOLANI PA NESPOSOBNI..........

Lokalno

Vse v Lokalno

Šport

Vse v Šport

Kronika

Vse v Kronika

Politika

Gospodarstvo

Slovenija

Scena

Svet

Vse v Svet

Kultura

Vse v Kultura

Forum

Vse teme

Malice

Vsi ponudniki

Mali oglasi

Vsi oglasi