V Šalovcih pričeli z revitalizacijo mansarde

| v Lokalno

Do jeseni 2025 bo Šalovce bogatila prenovljena mansarda za povezovanje ljudi.

V občini Šalovci so se v teh dneh začela gradbena dela v okviru projekta »Revitalizacija mansarde za močnejšo skupnost občine Šalovci«, ki ga v celoti financira ministrstvo za kohezijo in regionalni razvoj. 

Projekt je vreden 427.157,80 evra, občina Šalovci pa je zanj pridobila 100-odstotno sofinanciranje.

Trenutno izvajalci opravljajo krovska in tesarska dela, ki jim bodo sledila zidarska dela ter postopna ureditev notranjih prostorov. 

Do oktobra 2025 bo mansarda nad dvorano v središču Šalovcev popolnoma prenovljena in preurejena v sodobne prostore za druženje, povezovanje in različne dejavnosti.

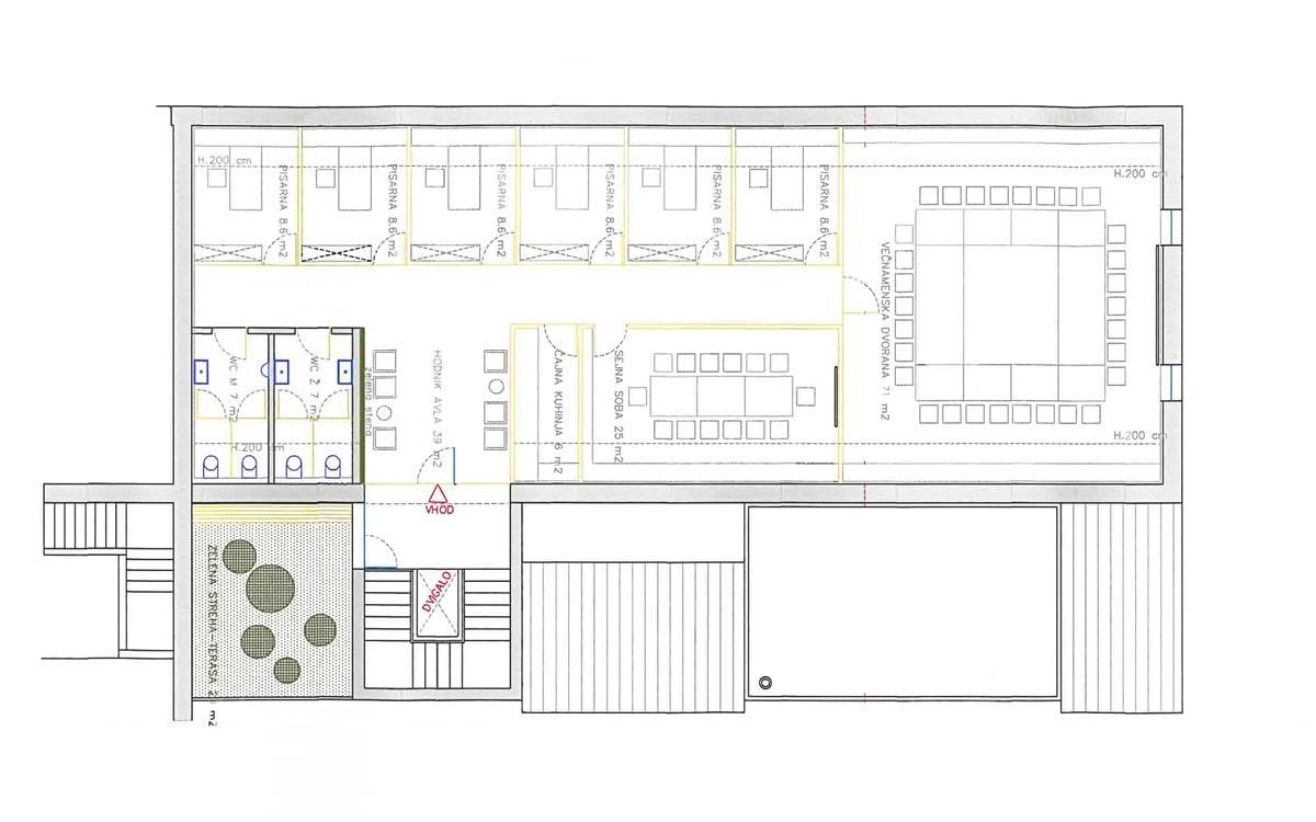
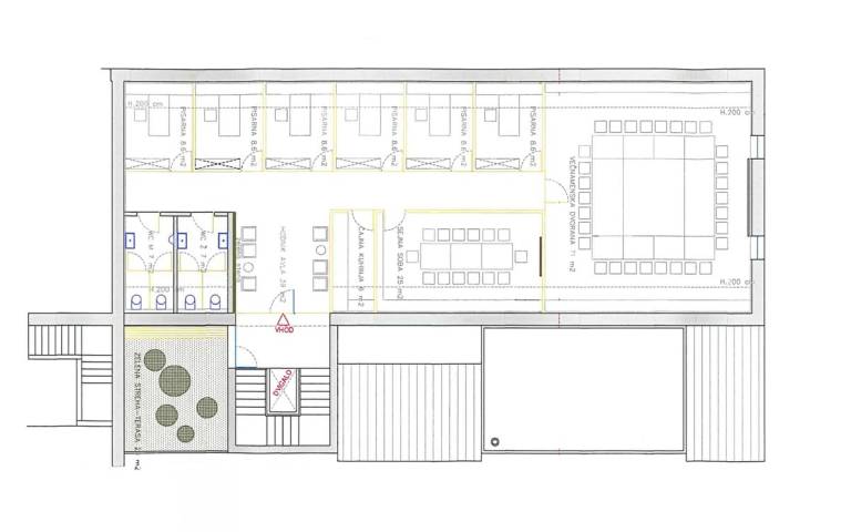
Nova mansarda bo obsegala 206,60 kvadratnega metra uporabne površine. 

Predvideni so prostori za pisarne, delavnice, izobraževanja in dogodke, ki bodo na voljo lokalnim društvom, kulturnim ustvarjalcem, podjetnikom ter izobraževalnim programom.

Projekt vključuje tudi elemente trajnostne gradnje, med drugim modro in zeleno infrastrukturo, kar bo prispevalo k energetski učinkovitosti in dolgoročni trajnosti objekta.

Tlorisni načrt mansardnih prostorov (vir: občina Šalovci).

»Namen projekta je preoblikovanje neizkoriščenih mansardnih prostorov v središču Šalovcev v sodoben skupnostni prostor, ki bo postal osrednje stičišče za prebivalce,« poudarjajo na občini.

Po prenovi bo mansarda služila kot prostor za številne dogodke, programe in srečanja, ki bodo krepili socialno povezanost ter izboljšali kakovost življenja prebivalcev v občini in širše.

Preberite še

Komentarji

mišo 1o

Ka si nauri kak se v Šalovci dela.

Komentarji

mišo 1o

Ka si nauri kak se v Šalovci dela.

Lokalno

Vse v Lokalno

Šport

Vse v Šport

Kronika

Vse v Kronika

Politika

Gospodarstvo

Slovenija

Scena

Svet

Vse v Svet

Kultura

Vse v Kultura

Forum

Vse teme

Malice

Vsi ponudniki

Mali oglasi

Vsi oglasi