Mansarda v Šalovcih bo dobila novo življenje, pridobili so nepovratna sredstva

| v Lokalno

Občina Šalovci je za projekt obnove javne infrastrukture pridobila več kot 427.000 evrov nepovratnih sredstev.

Občina Šalovci je bila uspešna na javnem razpisu Ministrstva za kohezijo in regionalni razvoj za leto 2025. 

Prejela je 100-odstotno sofinanciranje za projekt z naslovom Revitalizacija mansarde za močnejšo skupnost občine Šalovci v skupni vrednosti 427.157,80 evra.

Namen projekta je preoblikovanje neizkoriščenih mansardnih prostorov v središču Šalovcev v sodoben skupnostni prostor. 

Po prenovi bo ta služil kot osrednje stičišče za povezovanje, druženje in izvajanje raznovrstnih aktivnosti.

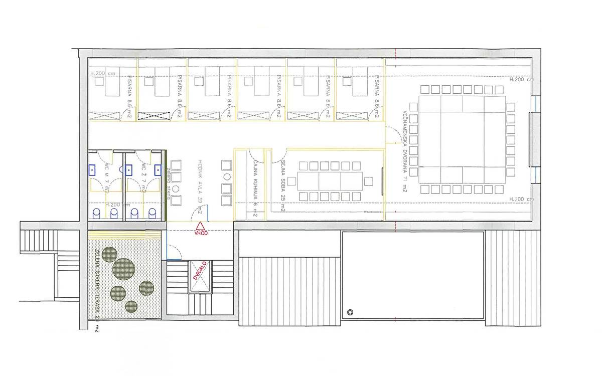
Nova mansarda bo obsegala 206,60 kvadratnega metra uporabne površine.

Namenjena bo lokalnim društvom, kulturnim ustvarjalcem, podjetnikom in izobraževalnim programom. 

Poleg pisarn bodo vzpostavljeni tudi prostori za delavnice, izobraževanja in dogodke.

Tlorisni načrt mansardnih prostorov (vir: občina Šalovci).

Zaključek projekta je predviden v oktobru 2025

V tem času bo potekala celovita obnova, ki bo vključevala tudi elemente trajnostne gradnje, kot sta modra in zelena infrastruktura.

Po obnovi bo mansarda gostila številne dogodke in programe, ki bodo spodbujali socialno povezanost ter povečevali kakovost življenja prebivalcev.

Preberite še

Komentarji

Gigi Govedina

Vah,trajnostna gradnja,modra in zelen na bruhanje mi ide zaradi teh debilnih, glupih izrazov.

Bakec

Taksne neksne nepomembne stvari se odpirajo… trgovine pa nega, nega pošte, nega bankomata… daj daj :)

Bak

Če bi pa to vse bilo bi pa pa jamro, da ni česa? Morja sredi Šalovec?
V trgovino tak nebi šel, ker bi zopet bil pameten da je drugje cenej...

Jouši

Kdo so ti močnejši?Pod palcem ali debeli?

mišo 1o

Komi tau trbej,financerajo se brezvezne stvari.

Komentarji

Gigi Govedina

Vah,trajnostna gradnja,modra in zelen na bruhanje mi ide zaradi teh debilnih, glupih izrazov.

Bakec

Taksne neksne nepomembne stvari se odpirajo… trgovine pa nega, nega pošte, nega bankomata… daj daj :)

Bak

Če bi pa to vse bilo bi pa pa jamro, da ni česa? Morja sredi Šalovec?
V trgovino tak nebi šel, ker bi zopet bil pameten da je drugje cenej...

Jouši

Kdo so ti močnejši?Pod palcem ali debeli?

mišo 1o

Komi tau trbej,financerajo se brezvezne stvari.

Lokalno

Vse v Lokalno

Šport

Vse v Šport

Kronika

Vse v Kronika

Politika

Gospodarstvo

Slovenija

Scena

Svet

Vse v Svet

Kultura

Vse v Kultura

Forum

Vse teme

Malice

Vsi ponudniki

Mali oglasi

Vsi oglasi