Ta pomurska občina bo bogatejša za posodobljena športna igrišča in atletsko stezo

| v Lokalno

Javno naročilo je že objavljeno, kaj vse želijo urediti?

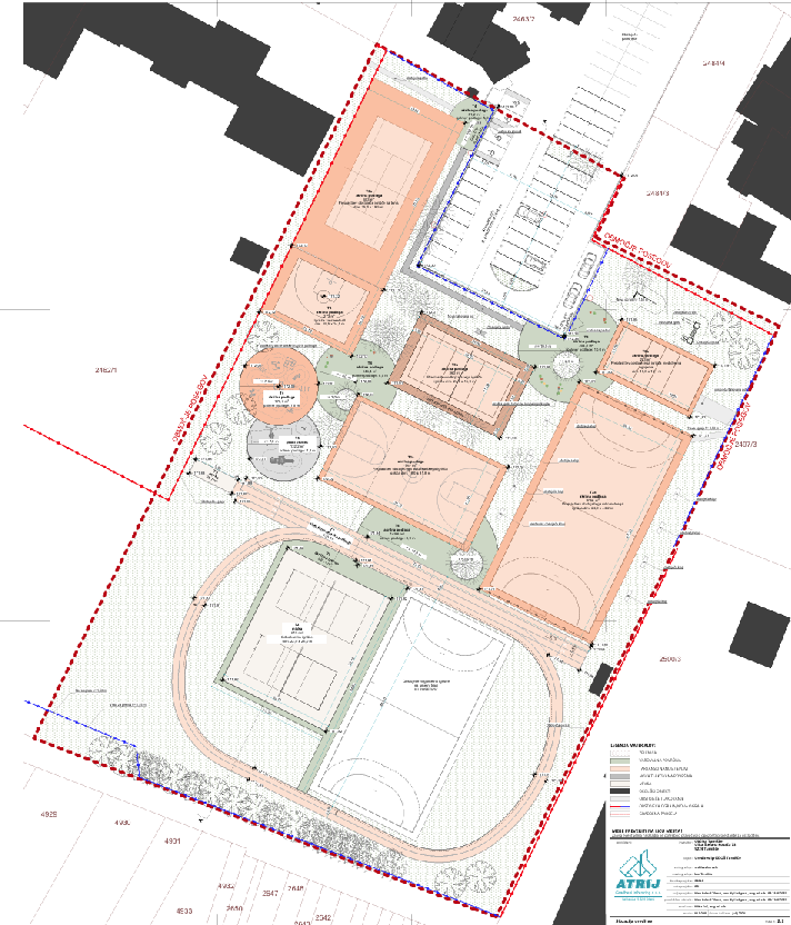
Občina Turnišče je objavila javno naročilo za rekonstrukcijo in ureditev športnih igrišč Turnišče.

Projekt zajema rušitvena dela, ureditev atletske steze in skoka v daljino, športna igrišča, varovalne podlage, igrišče za odbojko na mivki, parkirišča in ureditev okolice.

Najprej bodo odstranjena športna in otroška igrala, fitnes na prostem, skatepark, asfaltna prevleka košarkarskega igrišča in skateparka ter ograje rokometnega igrišča, parkirišča in odbojkarskega igrišča.

Odstranjeni bodo tudi obstoječi betonski robniki, cestni robniki in tlakovci.

Za investicijo predvidenih dobrih 360 tisočakov

Urediti želijo atletsko stezo in skok v daljino, igrišče za nogomet in razširiti površino obstoječega igrišča za odbojko.

Na novo želijo urediti obstoječe igrišče za odbojko na mivki in parkirišče. Postavljena bo tudi nova ograja.

Za rekonstrukcijo igrišč pri osnovni šoli je skupno predvidenih 362.468 evrov, je razvidno iz predloga proračuna občine.

Gradbena dela morajo biti izvedena najkasneje do 31. avgusta 2026.

Vir: Razpisna dokumentacija

Preberite še

Komentarji

Hahahahaha

😅😅😅😅😅

Komentarji

Hahahahaha

😅😅😅😅😅

Lokalno

Vse v Lokalno

Šport

Vse v Šport

Kronika

Vse v Kronika

Politika

Gospodarstvo

Slovenija

Scena

Svet

Vse v Svet

Kultura

Vse v Kultura

Forum

Vse teme

Malice

Vsi ponudniki

Mali oglasi

Vsi oglasi