Soboška bolnišnica po vzoru sodobnih evropskih bolnišnic dobiva nove prostore

| v Lokalno

Splošna bolnišnica Murska Sobota z javnim naročilom išče najugodnejšega ponudnika za nove prostore, ki bodo namenjeni slovesu od pokojnikov.

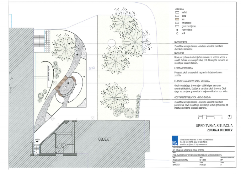
Kot je razvidno v idejni zasnovi, je poslovilni prostor predviden zraven patološkega oddelka, uredil pa se bo tako notranji kot zunanji prostor.

Skupna površina prostora znaša dobrih 30 kvadratnih metrov, manjši prostor se bo uporabljal kot prostor za skladiščenje in kot prostor za preoblačenje duhovnika.

Večji prostor pa bo namenjen za slovo od pokojnika.

Simbolika drevesa

Osnovni motiv oblikovanja poslovilnega prostora je drevo, ki je simbol življenja, družine in povezanosti s predniki ter posredno tudi simbol nesmrtnosti, so zapisali v družbi ZEU, kjer so izdelali idejno zasnovo.

Zunanji prostor je zasnovan v obliki elipse, okoli obstoječega drevesa, ob njem pa je nova pot, ki bo potekala po obstoječi 'divji' poti.

 

PREBERITE ŠE:

Omogočili bodo dostojno slovo od umrlih

Kot je povedal direktor soboške bolnišnice Daniel Grabar, so se odločili, da namenijo dodaten prostor za poslavljanje svojcev od umrlih, kar je do sedaj potekalo po bolnišničnih hodnikih in na oddelkih.

»Tako se bodo lahko posedli in dostojno ter v miru poslovili, kakor imajo urejeno tudi sodobne evropske bolnišnice,« je še pojasnil Grabar za Sobotainfo.

Javno naročilo soboške bolnišnice je sicer razdeljeno na tri sklope: 

  1. Notranji poslovilni prostor
  2. Zunanji poslovilni prostor
  3. Mizarska dela

Ponudbe je možno oddati do 15. junija.

Preberite še

Komentarji

A. . Uuff.

JA, NAJBOLJ NUJNO POTREBUJEJO VEČJO MRTVAŠNICO OZIROMA KOMPOSTNIK.

ravenec

Ka vse dr Grabar ne zrihta. Pravi pogrebnik.

Lea211

Korona nateg in prevara.

čarni vrag

baje sestre pušijo
podnevi in ponoči

tanja flaškon

ko bom jaz gagnevala
se bo prišla od mene posloviti cela XV divizija

dejan svinskoglavi

sereš kuzla

Lili Hop MS

Baje spet bo deževalo

Jagorst

Trbej večjo mrtvašnico ker bodo cepljeni umirali vse je splanirano. Korona NATEG.

ravenec

Korona mrtveci so velki pejnezi !

Oiuytre

Ja bolnice so zdaj ka lidij kolejo nej pa pomagajo kriminalci eni v doźivotni zapor z njimi.

Lp890

Najslabša bolnica na svetu.

hedvika

Vse je še nekako znosno ampak nekaj sester pa kakšen zdravnik bi se morali zavedati svoje službe .Sestre so včasih kot ,da bi bolnica bila njihova in zdravniki tudi .Ne bi rad nadaljeval ,ker sigurno nekateri imajo tudi slabe izkušnje .

čarni vrag

Namesto, ka bi se brigali za žive, se oni brigajo za mrtve. Pa vsaka ves ma moderno mrliško vežico, kjer se svojci in prijatelji poslovijo od pokojnika.

Karl Marx

ti si šele neko *žaljiva vsebina je bila odstranjena* zabito
z drisko polito
V bolnici se poslavljajo od umirajočih
v mrtvašnici pa od kadavrov
kot npr tvoje mame
Zagovarjam tezo
da so v bolnišnici prostori
kjer se lahko svojci dostojno poslovijo od umirajočih

pacientka

Pa vi vsi pametni, nimate nikogar, žene, matere, dece.. Kak lahko tak pišete??? Ko ja ne veste, kaj vas in vaše čaka jutri?

čarni vrag

jebe se meni za jutri

tanja flaškon

i meni

Komentarji

A. . Uuff.

JA, NAJBOLJ NUJNO POTREBUJEJO VEČJO MRTVAŠNICO OZIROMA KOMPOSTNIK.

ravenec

Ka vse dr Grabar ne zrihta. Pravi pogrebnik.

Lea211

Korona nateg in prevara.

čarni vrag

baje sestre pušijo
podnevi in ponoči

tanja flaškon

ko bom jaz gagnevala
se bo prišla od mene posloviti cela XV divizija

dejan svinskoglavi

sereš kuzla

Lili Hop MS

Baje spet bo deževalo

Jagorst

Trbej večjo mrtvašnico ker bodo cepljeni umirali vse je splanirano. Korona NATEG.

ravenec

Korona mrtveci so velki pejnezi !

Oiuytre

Ja bolnice so zdaj ka lidij kolejo nej pa pomagajo kriminalci eni v doźivotni zapor z njimi.

Lp890

Najslabša bolnica na svetu.

hedvika

Vse je še nekako znosno ampak nekaj sester pa kakšen zdravnik bi se morali zavedati svoje službe .Sestre so včasih kot ,da bi bolnica bila njihova in zdravniki tudi .Ne bi rad nadaljeval ,ker sigurno nekateri imajo tudi slabe izkušnje .

čarni vrag

Namesto, ka bi se brigali za žive, se oni brigajo za mrtve. Pa vsaka ves ma moderno mrliško vežico, kjer se svojci in prijatelji poslovijo od pokojnika.

Karl Marx

ti si šele neko *žaljiva vsebina je bila odstranjena* zabito
z drisko polito
V bolnici se poslavljajo od umirajočih
v mrtvašnici pa od kadavrov
kot npr tvoje mame
Zagovarjam tezo
da so v bolnišnici prostori
kjer se lahko svojci dostojno poslovijo od umirajočih

pacientka

Pa vi vsi pametni, nimate nikogar, žene, matere, dece.. Kak lahko tak pišete??? Ko ja ne veste, kaj vas in vaše čaka jutri?

čarni vrag

jebe se meni za jutri

tanja flaškon

i meni

Lokalno

Vse v Lokalno

Šport

Vse v Šport

Kronika

Vse v Kronika

Politika

Gospodarstvo

Slovenija

Scena

Svet

Vse v Svet

Kultura

Vse v Kultura

Forum

Vse teme

Malice

Vsi ponudniki

Mali oglasi

Vsi oglasi