Slaba dva milijona evrov za nov rehabilitacijski center v Pomurju, tako bo izgledal

| v Lokalno

Zgraditi želijo rehabilitacijski center za osebe s posebnimi potrebami.

Dom v Lukavcih že več kot 70 let nudi varstvo osebam s posebnimi potrebami.

Ponujajo varstvo okoli 300 osebam, v varovanih oddelkih socialnovarstvenih zavodov pa bivajo stanovalci, ki so zaradi svojih potreb, povezanih s težavami v duševnem zdravju, deležni posebne zaščite in varstva.

Zgraditi želijo nov rehabilitacijski center

Dom Lukavci je objavil javno naročilo za izgradnjo novega rehabilitacijskega centra.

Zgraditi želijo rehabilitacijski center za ljudi s posebnimi potrebami in dnevni center z začasnimi namestitvami oseb.

Ocenjena vrednost investicije slaba dva milijona evrov

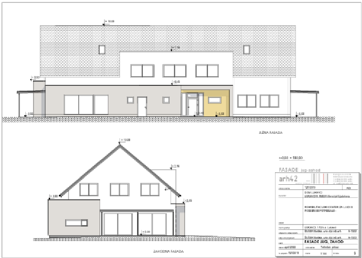
Javno naročilo obsega izgradnjo novega objekta v neposredni bližini matične lokacije, tlorisne velikosti 27,94 krat 14,35 metra in dvema terasama.

Zunanja ureditev obsega 600 kvadratnih metrov.

Ocenjena vrednost investicije je 1.903.993,39 evra, gradbeno dovoljenje pa je že pridobljeno.

Sodoben objekt z dvema terasama

Sredstva za izvedbo javnega naročila so zagotovljena v okviru proračuna Republike Slovenije, proračunskih postavk ministrstva za solidarno prihodnost.

Razliko potrebnih sredstev bo zagotovil Dom Lukavci.

Objekt je zasnovan sodobno, imel bo dve etaži in dve terasi.

Do kdaj bo zgrajen?

Rok za izvedbo del je največ 12 mesecev od podpisa pogodbe s strani naročnik, ponudbe pa bodo odpirali 4. marca 2025.

Nov rehabilitacijski center bi tako lahko bil zgrajen do konca meseca marca 2026.

Vir: Razpisna dokumentacija

Preberite še

Komentarji

Dudek

A budu tu samo lukavi koji jedu luk???

Janez 666

Tudi Dudeki bute meli plac.

Komentarji

Dudek

A budu tu samo lukavi koji jedu luk???

Janez 666

Tudi Dudeki bute meli plac.

Lokalno

Vse v Lokalno

Šport

Vse v Šport

Kronika

Vse v Kronika

Politika

Gospodarstvo

Slovenija

Scena

Svet

Vse v Svet

Kultura

Vse v Kultura

Forum

Vse teme

Malice

Vsi ponudniki

Mali oglasi

Vsi oglasi