Pri tem pomurskem zdravstvenem domu bodo dograjevali, to vse načrtujejo

| v Lokalno

Lendavski zdravstveni dom bo deležen rekonstrukcije in prizidkov.

V torek, 21. maja, je Janez Magyar, župan občine Lendava, podpisal sklep o začetku postopka oddaje javnega naročila za dozidavo in rekonstrukcijo Zdravstvenega doma Lendava.

Z investicijo bo rekonstruiranih približno 180 kvadratnih metrov obstoječih površin, zgrajen bo tudi prizidek v velikosti približno 1100 kvadratnih metrov.

Ob tem bosta urejena tudi nadstreška v velikosti približno 205 kvadratnih metrov za potrebe parkiranja službenih vozil in odlaganja infektivnih odpadkov.

Predviden zaključek investicije je konec leta 2026

Zdravstveni dom bo nove prostore namenil izvajanju programov splošne in družinske medicine, zdravstvenega varstva žensk, preventivne dejavnosti in zobozdravstvene službe.

Objekt bo priklopljen na sistem daljinskega ogrevanja z uporabo geotermalne energije. Predviden zaključek investicije je konec leta 2026.

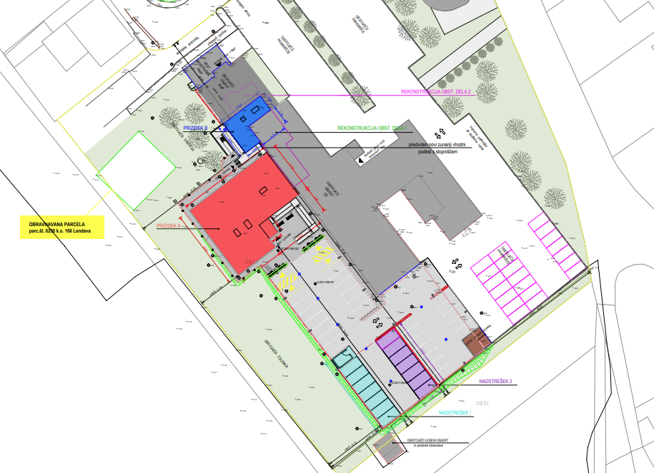
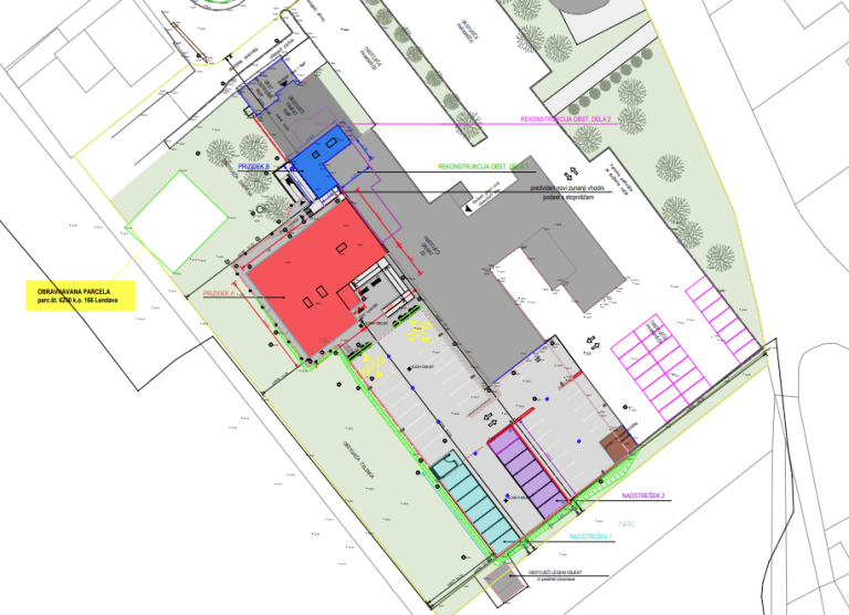
Dva prizidka, dva nadstreška in rekonstrukcija obstoječega dela

Javno naročilo je objavljeno na portalu javnih naročil, rok za oddajo ponudb pa je 11. junij 2024, do 10. ure.

Na jugozahodni strani obstoječega Zdravstvenega doma Lendava je predvidena novogradnja prizidka A in rekonstrukcija obstoječega dela.

Na zahodni strani kompleksa zdravstvenega doma mes obstoječim starejšim delom in prizidkom Nujne medicinske pomoči pa je predviden prizidek B.

Ob prizidku A je predvidena ureditev parkirišč za paciente ter gradnja dveh nadstreškov za službena vozila, nasproti nadstreška ena je predviden nadstrešek dva, ki bo namenjen kot pokrito parkirišče za sedem službenih vozil.

Vir: Občina Lendava

Vir: Grafični del javnega naročila.

Preberite še

Komentarji

čarni vrag

Baje sestre pušijo
ponoči
in
podnevi
in celo za 1.maj

.

Kapa za 1. November?

Kiki 2

takrat jaz pušim kar na pokopališči

čarni vrag

jaz tudi

Surfeiter

sami pušači

captain

Ne spreglejte: Zaposlijo sodelavce v tovarni ROTO Puconci . Kako se lepo sliši !!

čarni vrag

tu bi se ša jaz zaposlil
čeravno sem težko zaposliv
tako so mi rekli doktori v Ormoži
Pit ne smem,
ker če ne pijem sem še kar v redu

Komentarji

čarni vrag

Baje sestre pušijo
ponoči
in
podnevi
in celo za 1.maj

.

Kapa za 1. November?

Kiki 2

takrat jaz pušim kar na pokopališči

čarni vrag

jaz tudi

Surfeiter

sami pušači

captain

Ne spreglejte: Zaposlijo sodelavce v tovarni ROTO Puconci . Kako se lepo sliši !!

čarni vrag

tu bi se ša jaz zaposlil
čeravno sem težko zaposliv
tako so mi rekli doktori v Ormoži
Pit ne smem,
ker če ne pijem sem še kar v redu

Lokalno

Vse v Lokalno

Šport

Vse v Šport

Kronika

Vse v Kronika

Politika

Gospodarstvo

Slovenija

Scena

Svet

Vse v Svet

Kultura

Vse v Kultura

Forum

Vse teme

Malice

Vsi ponudniki

Mali oglasi

Vsi oglasi