FOTO: Tako bo videti notranjost Zelenega dvora, ki bo zrasel v središču Murske Sobote

| v Lokalno

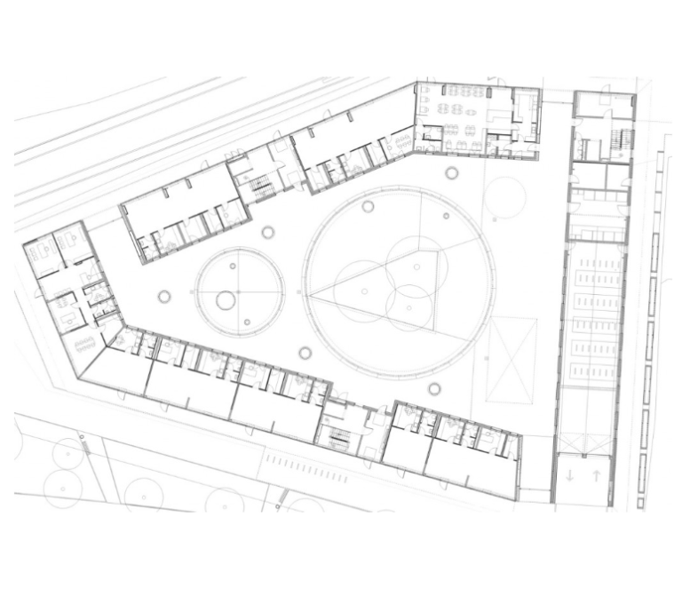
Na makadamskem parkirišču v neposredni bližini avtobusne postaje bo zrasel stanovanjski kompleks »Zeleni dvor«.

Kot smo že poročali, bo v središču Murske Sobote zrasel objekt, ki bo ponujal kar 76 stanovanj, od tega 28 dvosobnih, 36 trosobnih in 12 štirisobnih stanovanj.

Podjetje Imo-Real je sedaj predstavilo tudi notranji izgled stanovanjskega kompleksa Zeleni dvor, ki bo zrasel na območju sedanjega makadamskega parkirišča v nešposredni bližini knjižnice in avtobusne postaje.

Stavba bo visoka dobrih 20 metrov, zazidane površine pa bo 2095,3 kvadratnega metra.

Trije različni vhodi, na območju vhoda A 35 stanovanj

Kot so prikazali v vizualizaciji, bo stanovanjski kompleks sestavljen iz treh različnih vhodov, in sicer vhoda A, B in C.

Na območju vhoda A bo v štirih nadstropjih na voljo skupno 28 stanovanj, sedem na posamezno nadstropje, in sicer tri štirisobna, tri trisobna in eno dvosobno stanovanje.

Na območju vhoda B, 5 stanovanj na posamezno etažo

Na območju vhoda B, s katerega bodo imeli stanovalci pogled na Pokrajinsko in študijsko knjižnico Murska Sobota, bo v skupno štirih nadstropjih na voljo 20 stanovanj, po posamezni etaži bodo na voljo štiri trisobna in eno dvosobno stanovanje.

Na območju vhoda C, bo podobno kot na območju vhoda A skupno na voljo 28 stanovanj, na posamezno etažo pet dvosobnih in dve trisobna stanovanja.

 

Tudi poslovni prostori in lokali v pritličju

V kleti bodo parkirišča, teh je predvidenih 116, za stanovalce in uporabnike poslovnih prostorov.

Vsako stanovanje bo imelo tudi svojo shrambo, ki bo obsegala minimalno pet kvadratnih metrov. V pritličju se bodo nahajali poslovni prostori, lokali in dvorišče z veliko kolesarnico za 128 koles.

Preberite še

Komentarji

Oli

In cez kelko lejt de se to zacnolo zidati? In kelkokrat do se do takrat spremenili nacrte?

Vrag

Tou pa nejde prepisati, pitate pa se ji tudi ne da. Zida se že 20 lejt... Taka..

dean80

Nov zaporniški kompleks v Ljubljani bo izgledal precej bolje kot to...
Na splošno so so v M.S pred 20 leti gradili
arhitekturno precej lepši objekti, Šavel center, glasbena šola, Pokrajinska knjižnica, bloki na Cvetkovi itd..

..

Kelko de pa parkirnih prostorov, znankar premalo. Zdaj se lejko računa 1,5 avtoja na stanovanje najmenje.

akaoaoao

vsaj 2,5 rezen ce bodo noter sami podnebni aktivisti, ki vozijo na sonce in bicikelj, razen ko grejo na maldive vzamejo letalo.

bor56

In spet bogataši dobili stanovanja!!

bogataš

Ja pa ka zaj? Mi si jih edini lejko privoščimo. Van siromakon naj država zida stanovanja, kere si itak nemrete kupiti in bi not živeli kak paraziti z neprofitno najemnino. Mi ka pa mamo pa si lejko takšna stanovanja privoščimo in jih te za nas tudi firme zidajo.

Mojca 12345

Sram te je lejko, me zanima kakšno sporočilo boš predal svojim otrokom,zato pa je tak na sveti, bogataši mislite ka ste vse in še več, cccc malo pomisli, če maš s ken

Vrag

Ali pa sociala kak prek bloka

asdasad

velkome to slovenistan

gradbiqnj

razen barve tisoce kubikov betona, tukaj ni nic zelenega, nula, zero. potem pa zakaj je v mestu v poletnih mesecih nenormlano vroce.

asdasd

Razen barve tisoče kubikov betona, ki bo obdali s stiropor, tukaj ni nič zelenega, nula,

MTS

Cena pa de 1800-2000€ na m2.

Tibop

Haha optimist. Tu dosti pod 2500 na m2 nede.

TikTok

Za selo kak je sobota 2500€ na m2??

Jshdhsns

Cena: 300.000 €. Sto de si lejko privosco, de mel za soside drhal, stera izigravle sistem pa dobijo od socialnoga stanovanje...

čarni vrag

To čudo de popolnoma zakrilo pogled na knjižnico. V sredini do tri dreve, pa tri grma in evo ti ga Zeleni dvor.

Zdenkoslav

Vej pa de fasada zelena. Ne vijdiš?

čarni vrag

To še najbole spominja na zatvor.

Ajdova kaša

In opet bodo jovo na novo cesto in pločnike "delali" ... naj takšne stanovanjske dvore naredijo na obrobju mesta,ne pa v samem centru.

Vrag

Če pa so vsi povezani, da dobijo svoj kamion torte

butec

Ta stanovanja do lejko lekar samo največ dva metra široka, ka do lejko umestili Zeleni dvor. Rajši bi par drejv posadili ka bi meli boukši zrak, pa malo parkinga, nej pa to lepo narisano bedastočo, štera je daleč od realnosti. Što ne vrvle, naj si na lici mesta pogledne kak velki pa širki je plac na šteron do to sranje zidali.Šteri arhitekt je to modrijo napravo, zna što?

Lidlen

Kelko de cena parkiranja?

Tibop

Za tebe, ker očitno ne boš kupo stanovanja, tu parkinga več ne bo.

Cenik parkiranja

Za tebe, Debeli fuknjenec, ka maš stari moped, de na den samo13 e, ka tej čas,
ka de tou gotovo, do za vsaj 5 kratno poskočile.

Globoko

Palik samo jok in stok ena in istih modrijašof. Nika van ne paše. Nika! Se ne zida van ne paše. Se zida van ne paše. Se dela tak van ne paše. Se dela ovak van ne paše. Van sploj kaj paše? Ja itak - gnjaviti pa stonjati za saki drek. Get. A. Life!

Plitvo

Ti tudi jokaš in stokaš. Jamraš zaradi jamranja. Get a life.

Globoko

Oh ge man. Mi pa na k idejo takši modrijaši kak si ti in tebi podobni.

lukčev mesec

Župani in gradbeni baroni delajo z roko v roki.

Pred 50 leti za časa Jugoslavije so se delala naselja desetine in stotine hiš, ko so ljudje gradili individualno.

Danes je stanovanjski problem, ker župani po dogovoru z gradbeno mafijo namerno ne odpirajo več novih naselij, kjer bi ljudje individualno gradili.

Sedaj se tu in tam vsake nekaj časa zgradijo stanovanja, ki so samo za bogate.

Sramota.

čarni vrag

Vsekakor je popolnoma zgrešeno postaviti takšno ogromno stavbo na to malo parcelo. Imeli bodo kolesarnico za 122 koles, pa nobeno parkirišče.

..

Bloka brez parkirišč nesmijo niti zijdati, de pa bole problem parkejrati tistin keti prijdejo na obisk. Mo vidli ja de iz toga. Či bi ge meo telko pejnez kak de stanovanje koštalo ni šanse ka bi tou kupo.

Vrag

Ti ne bi kupo, da ti bi si ga na silo prilasto kak si si že... Te pa modrijaša špilo

ciglar

In ti si seveda arihtekt ali najmenje kakšen gradbeni inženir ka se tak v to razmiš. In seveda si tudi vido blueprint načrte in točno znaš kak de vse izgledalo, kelko de parkirišč, ge do parkirišča in ostalo v ka se očitno tak fejst razmiš.

Opekar

Ti pa se fejst razmiš geli. Si inženir pametovanja z diplomo iz prištine.

H2O4

sobota bo ena sama peš cona, zvunski se pa vozite v soboto z biciklni

Bumefekt

To izgleda kot Pentagon,a to je narocil bivsi serif,zdajsni funkcijonar,da ko pride v jesen svojega zivlenja,v penzijon,da bo sluzil kot stanovalodajalec.Sobotainfo dajte raziscite to,plus..zakaj tega Pentagona ne zida,edini mojster zidar,Pomgrad..

Vrag

Tou jin ne Padne na pamet.. Očitno sami svoji gradnji ne zaupajo.. Nejso ceste ka bi dost mafnole

Gost#3

Meni pa izgleda všečno...samo še avtobusno preseliti k železniški postaji in podobno, sicer menšo/nižjo (max 3.nadstropja, ka nede preveč lüjdi na küpi) zadevo, z definitivno več zelenja, kak zrcalno zgodbo...brez trgovin v pritličji. Pač ograjen par metrski travnati pas do stavbe....

Mojca 12345

Ja notri, pa pa takšni kak v novon na kocljevi, mi srmaki v privat z najemnino, pa moremo to zderanje poslušati....

Sobočanec 75

Kak be naj stavba izgledala (https://sobotainfo.com/novica/lokalno/na-parkiriscu-ob-slomskovi-ze-brn…) je to eden zmazek, ki bo zakril arhitekturo knjižnice. Imo-real se je spet podelal v hlače glede kakšno stavbo so obljubljali. Njeme je glavno ga stanovanja oda za velke pejnaze, ka de lejko na hrvaškon na čune zapravlo.
Župan me mogo tu napravete pritisk na izvajalca, naj postavi v gabaritih kot je bila nagrajena arhitektura.

čarni vrag

Zelo lepo.

Komentarji

Oli

In cez kelko lejt de se to zacnolo zidati? In kelkokrat do se do takrat spremenili nacrte?

Vrag

Tou pa nejde prepisati, pitate pa se ji tudi ne da. Zida se že 20 lejt... Taka..

dean80

Nov zaporniški kompleks v Ljubljani bo izgledal precej bolje kot to...
Na splošno so so v M.S pred 20 leti gradili
arhitekturno precej lepši objekti, Šavel center, glasbena šola, Pokrajinska knjižnica, bloki na Cvetkovi itd..

..

Kelko de pa parkirnih prostorov, znankar premalo. Zdaj se lejko računa 1,5 avtoja na stanovanje najmenje.

akaoaoao

vsaj 2,5 rezen ce bodo noter sami podnebni aktivisti, ki vozijo na sonce in bicikelj, razen ko grejo na maldive vzamejo letalo.

bor56

In spet bogataši dobili stanovanja!!

bogataš

Ja pa ka zaj? Mi si jih edini lejko privoščimo. Van siromakon naj država zida stanovanja, kere si itak nemrete kupiti in bi not živeli kak paraziti z neprofitno najemnino. Mi ka pa mamo pa si lejko takšna stanovanja privoščimo in jih te za nas tudi firme zidajo.

Mojca 12345

Sram te je lejko, me zanima kakšno sporočilo boš predal svojim otrokom,zato pa je tak na sveti, bogataši mislite ka ste vse in še več, cccc malo pomisli, če maš s ken

Vrag

Ali pa sociala kak prek bloka

asdasad

velkome to slovenistan

gradbiqnj

razen barve tisoce kubikov betona, tukaj ni nic zelenega, nula, zero. potem pa zakaj je v mestu v poletnih mesecih nenormlano vroce.

asdasd

Razen barve tisoče kubikov betona, ki bo obdali s stiropor, tukaj ni nič zelenega, nula,

MTS

Cena pa de 1800-2000€ na m2.

Tibop

Haha optimist. Tu dosti pod 2500 na m2 nede.

TikTok

Za selo kak je sobota 2500€ na m2??

Jshdhsns

Cena: 300.000 €. Sto de si lejko privosco, de mel za soside drhal, stera izigravle sistem pa dobijo od socialnoga stanovanje...

čarni vrag

To čudo de popolnoma zakrilo pogled na knjižnico. V sredini do tri dreve, pa tri grma in evo ti ga Zeleni dvor.

Zdenkoslav

Vej pa de fasada zelena. Ne vijdiš?

čarni vrag

To še najbole spominja na zatvor.

Ajdova kaša

In opet bodo jovo na novo cesto in pločnike "delali" ... naj takšne stanovanjske dvore naredijo na obrobju mesta,ne pa v samem centru.

Vrag

Če pa so vsi povezani, da dobijo svoj kamion torte

butec

Ta stanovanja do lejko lekar samo največ dva metra široka, ka do lejko umestili Zeleni dvor. Rajši bi par drejv posadili ka bi meli boukši zrak, pa malo parkinga, nej pa to lepo narisano bedastočo, štera je daleč od realnosti. Što ne vrvle, naj si na lici mesta pogledne kak velki pa širki je plac na šteron do to sranje zidali.Šteri arhitekt je to modrijo napravo, zna što?

Lidlen

Kelko de cena parkiranja?

Tibop

Za tebe, ker očitno ne boš kupo stanovanja, tu parkinga več ne bo.

Cenik parkiranja

Za tebe, Debeli fuknjenec, ka maš stari moped, de na den samo13 e, ka tej čas,
ka de tou gotovo, do za vsaj 5 kratno poskočile.

Globoko

Palik samo jok in stok ena in istih modrijašof. Nika van ne paše. Nika! Se ne zida van ne paše. Se zida van ne paše. Se dela tak van ne paše. Se dela ovak van ne paše. Van sploj kaj paše? Ja itak - gnjaviti pa stonjati za saki drek. Get. A. Life!

Plitvo

Ti tudi jokaš in stokaš. Jamraš zaradi jamranja. Get a life.

Globoko

Oh ge man. Mi pa na k idejo takši modrijaši kak si ti in tebi podobni.

lukčev mesec

Župani in gradbeni baroni delajo z roko v roki.

Pred 50 leti za časa Jugoslavije so se delala naselja desetine in stotine hiš, ko so ljudje gradili individualno.

Danes je stanovanjski problem, ker župani po dogovoru z gradbeno mafijo namerno ne odpirajo več novih naselij, kjer bi ljudje individualno gradili.

Sedaj se tu in tam vsake nekaj časa zgradijo stanovanja, ki so samo za bogate.

Sramota.

čarni vrag

Vsekakor je popolnoma zgrešeno postaviti takšno ogromno stavbo na to malo parcelo. Imeli bodo kolesarnico za 122 koles, pa nobeno parkirišče.

..

Bloka brez parkirišč nesmijo niti zijdati, de pa bole problem parkejrati tistin keti prijdejo na obisk. Mo vidli ja de iz toga. Či bi ge meo telko pejnez kak de stanovanje koštalo ni šanse ka bi tou kupo.

Vrag

Ti ne bi kupo, da ti bi si ga na silo prilasto kak si si že... Te pa modrijaša špilo

ciglar

In ti si seveda arihtekt ali najmenje kakšen gradbeni inženir ka se tak v to razmiš. In seveda si tudi vido blueprint načrte in točno znaš kak de vse izgledalo, kelko de parkirišč, ge do parkirišča in ostalo v ka se očitno tak fejst razmiš.

Opekar

Ti pa se fejst razmiš geli. Si inženir pametovanja z diplomo iz prištine.

H2O4

sobota bo ena sama peš cona, zvunski se pa vozite v soboto z biciklni

Bumefekt

To izgleda kot Pentagon,a to je narocil bivsi serif,zdajsni funkcijonar,da ko pride v jesen svojega zivlenja,v penzijon,da bo sluzil kot stanovalodajalec.Sobotainfo dajte raziscite to,plus..zakaj tega Pentagona ne zida,edini mojster zidar,Pomgrad..

Vrag

Tou jin ne Padne na pamet.. Očitno sami svoji gradnji ne zaupajo.. Nejso ceste ka bi dost mafnole

Gost#3

Meni pa izgleda všečno...samo še avtobusno preseliti k železniški postaji in podobno, sicer menšo/nižjo (max 3.nadstropja, ka nede preveč lüjdi na küpi) zadevo, z definitivno več zelenja, kak zrcalno zgodbo...brez trgovin v pritličji. Pač ograjen par metrski travnati pas do stavbe....

Mojca 12345

Ja notri, pa pa takšni kak v novon na kocljevi, mi srmaki v privat z najemnino, pa moremo to zderanje poslušati....

Sobočanec 75

Kak be naj stavba izgledala (https://sobotainfo.com/novica/lokalno/na-parkiriscu-ob-slomskovi-ze-brn…) je to eden zmazek, ki bo zakril arhitekturo knjižnice. Imo-real se je spet podelal v hlače glede kakšno stavbo so obljubljali. Njeme je glavno ga stanovanja oda za velke pejnaze, ka de lejko na hrvaškon na čune zapravlo.
Župan me mogo tu napravete pritisk na izvajalca, naj postavi v gabaritih kot je bila nagrajena arhitektura.

čarni vrag

Zelo lepo.

Lokalno

Vse v Lokalno

Šport

Vse v Šport

Kronika

Vse v Kronika

Politika

Gospodarstvo

Slovenija

Scena

Svet

Vse v Svet

Kultura

Vse v Kultura

Forum

Vse teme

Malice

Vsi ponudniki

Mali oglasi

Vsi oglasi