Za prvo fazo gradnje centra prostovoljstva in vinske kulture predvidenih dobrih 100 tisočakov

| v Lokalno

Občina je objavila javno naročilo za prvo fazo gradnje.

Občina Razkrižje se skupaj s skupino prostovoljcev trudi za pestrost dogajanja in ohranitev kulturne vinogradniške dediščine.

S tem namenom bo tam vzpostavljen center prostovoljstva in razvoja vinske kulture.

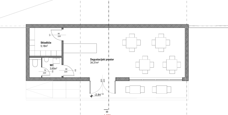
Večnamenska prireditveno-promocijska dvorana

Poročali smo, da bo na predvideni površini postavljen montažni leseni pritličen in delno podkleten objekt. V kleti objekta bo urejen manjši degustacijski prostor z urejenimi sanitarnimi prostori in skladiščem.

Objekt bo služil kot večnamenska prireditveno-promocijska dvorana, hkrati pa tudi kot konferenčni in prireditveni objekt.

Predvideno je zadrževanje za približno 25 ljudi, parkirna mesta pa bodo urejena ob novem dovozu na jugu parcele.

Dobrih 350 tisočakov

Skupna vrednost projekta je 358.963,63 evra, od tega je za sofinanciranje odobrenih nepovratnih sredstev iz gozdnega sklada do skupne višine 110.520,94 evra.

Projekt se bo izvajal skupno 27 mesecev, začel se je že v letu 2023 z aktivnostmi izdelave projektne in druge potrebne dokumentacije.

Objekt bo zrasel v naselju Šprinc

Občina Razkrižje je sedaj objavila tudi javno naročilo za gradnjo prve faze - pripravljalna dela.

Iz razpisne dokumentacije je razvidno, da nameravajo objekt urediti v sklopu obstoječega kompleksa vinogradniškega društva, ki trenutno že služi občasnim večjim prireditvam.

Dovot do objekta je že urejen, na novo predvidevajo šest parkirnih mest v sklopu zunanje ureditve.

Na zemljišču so že določeni obstoječi priključki na komunalne vode naselja. Zemljišče se nagaja v nadelju Šprinc.

Vir: Občina Razkrižje

Na zemljišču je predvidena postavitev montažnega lesenega objekta, pritlični del objekta bo delno zazidan, delno zastekljen.

Rok za prejem ponudb je 19. november 2024, ocenjena vrednost prve faze pa je 120.007,26 evra.

Vir: Razpisna dokumentacija

Preberite še

Komentarji

Sjvar

Kak je fain ta metati peneze za takse nepomembne stvari

RDEČI AUAU

Bedaki štajerski !!!!

Opazovalka

Vcasih se po Sprinci furam s kolesom, fejst lejpi razgledi so tam 👍
Vsekakor podpiram idejo!

Lukčev Mesec

kaj pa mesec
🤣🤣🤣🤣🤣🤣🤣🤣🤣

Komentarji

Sjvar

Kak je fain ta metati peneze za takse nepomembne stvari

RDEČI AUAU

Bedaki štajerski !!!!

Opazovalka

Vcasih se po Sprinci furam s kolesom, fejst lejpi razgledi so tam 👍
Vsekakor podpiram idejo!

Lukčev Mesec

kaj pa mesec
🤣🤣🤣🤣🤣🤣🤣🤣🤣

Lokalno

Vse v Lokalno

Šport

Vse v Šport

Kronika

Vse v Kronika

Politika

Gospodarstvo

Slovenija

Scena

Svet

Vse v Svet

Kultura

Vse v Kultura

Forum

Vse teme

Malice

Vsi ponudniki

Mali oglasi

Vsi oglasi