Iz stavbe na meji bi naredili center z devetimi sobami in kavarno, občina v iskanju partnerja

| v Lokalno

Vrednost investicije je ocenjena na okoli 250 tisoč evrov.

Občina Tišina želi v stavbi nekdanjega mejnega prehoda v Gederovcih vzpostaviti Turističnoinformacijski center Gederovci.

Objavili so javni poziv k oddaji vloge zainteresiranim za izvedbo projekta javno-zasebnega partnerstva.

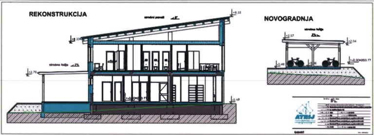
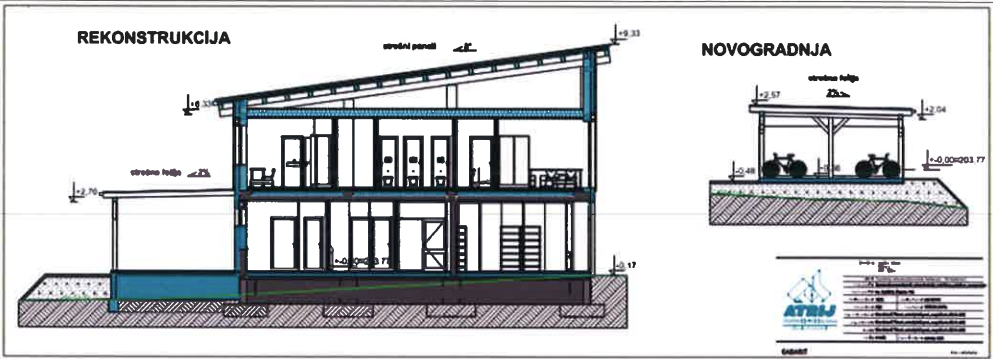
Celovita prenova obstoječega objekta

Namen občine je pridobitev zasebnega partnerja, zainteresiranega za izvedbo projekta Turističnoinformacijski center Gederovci.

Gre za celovito prenovo obstoječega objekta in njegovo preoblikovanje v sodobno turistično središče, ki bo služilo kot informacijska točka za obiskovalce, središče promocije lokalne kulturne in naravne dediščine ter postajališče za turiste, kolesarje in avtodomske goste.

Turističnoinformacijski center Gederovci bo obogaten z novimi vsebinami, ki bodo izboljšale turistično ponudbo občine in regije.

Z vzpostavitvijo sodobnih prenočitvenih kapacitet želijo okrepiti prepoznavnost kraja, projekt pa je namenjen predvsem razvoju občine Tišina.

Devet sob s 25 ležišči

Projekt je načrtovan na lokaciji nekdanjega mejnega prehoda Gederovci, vključeval pa bo predstavitvene prostore, razstavne in izobraževalne vsebine, prostor za dogodke ter kavarniški kotiček za obiskovalce ter prenočitvene kapacitete.

V okviru projekta bo objekt rekonstruiran in nadzidan, vključeval pa bo devet sob za kratkotrajno nastanitev s 25 ležišči, sprejemno pisarno, prodajalno lokalnih izdelkov, skupni prostor za goste in pomožne prostore.

Zunanja ureditev bo obsegala pokrito teraso, parkirišče za deset vozil, kolesarnico ter območje za avtodome, oskrbovalnim otokom in piknik prostori.

Partner bo izvedel rekonstrukcijo in nadzidavo

Projektna dokumentacija je že izdelana. Objekt bo zasnovan z dvema etažama, nastanitveni del bo urejen v prvem nadstropju.

Urejena bo tudi igralna površina za otroke, ki bo opremljena z igrali iz naravnih materialov.

V okviru prenove objekta bo partner izvedel rekonstrukcijo in nadzidavo stavbe ter zagotovil infrastrukturo za učinkovito delovanje centra.

Uporabo prostorov si bosta javni in zasebni partner ves čas trajanja javno-zasebnega partnerstva delila v skladu z vnaprej opredeljenimi vsebinami in obsegom.

Občina pričakuje, da bo investicija zasebnemu partnerju pretežno povrnjena prek možnosti trženja namenskih prostorov, predvsem nastanitvenih kapacitet, promocijskih prostorov in gostinskih storitev.

Skupna vrednost projekta skoraj 250 tisoč evrov

Občina v proračunu letos načrtuje 10.000 evrov za omenjeni objekt. 

Skupna vrednost projekta je ocenjena na 244.369,15 evra, od tega je bilo do leta 2025 vloženih 44.369,15 evra lastnih sredstev, v letu 2027 pa je načrtovanih še dodatnih 200.000 evrov evropskih sredstev.

Vir: občina Tišina

Preberite še

Komentarji

Rewwww

A najslabšo jahalno cesto v Prekmurju do Kroga pa ne morejo preplastiti, kjer je investicija 1x nižja??? banda.

wewew

to je spomeniško zaščiteno. Kda sna bil star 6 lejt san se vozo po tistoj cesti pa je bijla razjebana. Zaj san star 32.

Gost55

Komentar leta, verjetno je vsaka razpoka in jama pod spomeniškim varstvom in ima dodeljenega enega parazita, ki bedi nad njo.

.

Ka ma veze cesta do Kroga, vej pa fajn pijše ka bi partner investejro obnovo. Težko razmiti?

T3566

A mora lokalni problem ki se vleče že leta imeti kakšno vezo z drugimi nepomembnimi projekti za občane??
A misliš da je izdelava projektne dokumentacije bila zastonj?

captain

, občina v iskanju partnerja, to se pravi da so delali na pamet, kaj bo pa bo ?!

Tooo

Vprašanje kateri svetnik je imel to pravljično idejo.?

T3566

Glede na sliko iz strani FB, je to verjetno bila ideja tišinskih svetnikov gibanja Svobode. polovica mandata je že mimo, in le ena ideja.... po učinku so podobni kot njihov vodja prazne besede, ...

geostaj

Zakaj v občini Tišina ni več ležečih policajev? ....... ker že njihove razjahane ceste opravijo omejitev hitrosti.
vse je za nekaj dobro.

Le kdo

Opet na *Brazilske* pejenze de se delalo kak vedno !

Opel

V toj stavbi so se v času korone parili policaji.

Komentarji

Rewwww

A najslabšo jahalno cesto v Prekmurju do Kroga pa ne morejo preplastiti, kjer je investicija 1x nižja??? banda.

wewew

to je spomeniško zaščiteno. Kda sna bil star 6 lejt san se vozo po tistoj cesti pa je bijla razjebana. Zaj san star 32.

Gost55

Komentar leta, verjetno je vsaka razpoka in jama pod spomeniškim varstvom in ima dodeljenega enega parazita, ki bedi nad njo.

.

Ka ma veze cesta do Kroga, vej pa fajn pijše ka bi partner investejro obnovo. Težko razmiti?

T3566

A mora lokalni problem ki se vleče že leta imeti kakšno vezo z drugimi nepomembnimi projekti za občane??
A misliš da je izdelava projektne dokumentacije bila zastonj?

captain

, občina v iskanju partnerja, to se pravi da so delali na pamet, kaj bo pa bo ?!

Tooo

Vprašanje kateri svetnik je imel to pravljično idejo.?

T3566

Glede na sliko iz strani FB, je to verjetno bila ideja tišinskih svetnikov gibanja Svobode. polovica mandata je že mimo, in le ena ideja.... po učinku so podobni kot njihov vodja prazne besede, ...

geostaj

Zakaj v občini Tišina ni več ležečih policajev? ....... ker že njihove razjahane ceste opravijo omejitev hitrosti.
vse je za nekaj dobro.

Le kdo

Opet na *Brazilske* pejenze de se delalo kak vedno !

Opel

V toj stavbi so se v času korone parili policaji.

Lokalno

Vse v Lokalno

Šport

Vse v Šport

Kronika

Vse v Kronika

Politika

Gospodarstvo

Slovenija

Scena

Svet

Vse v Svet

Kultura

Vse v Kultura

Forum

Vse teme

Malice

Vsi ponudniki

Mali oglasi

Vsi oglasi